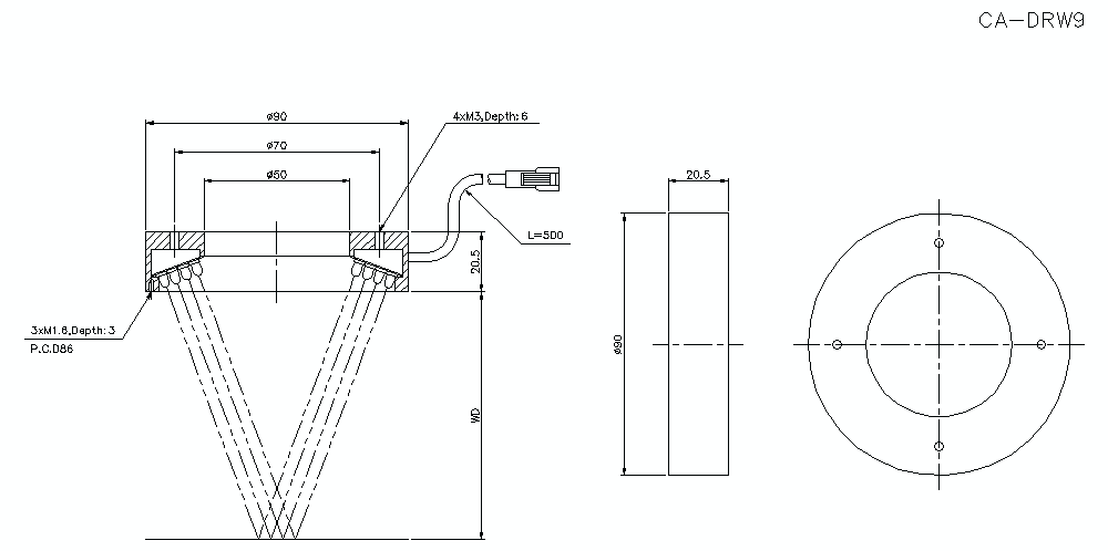
Abmessungen

* Wenn der Text schwierig zu lesen ist, lesen Sie bitte in den CAD-Daten oder in der Bedienungsanleitung nach.

ca-drw9_2_dimension_01.gif

CA-DRW9 Dimension