Dimensions

* En cas de difficultés à lire le texte, consultez les données CAO ou le manuel.

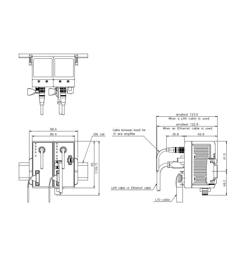
IX_AMP Dimension

IX_AMP Dimension