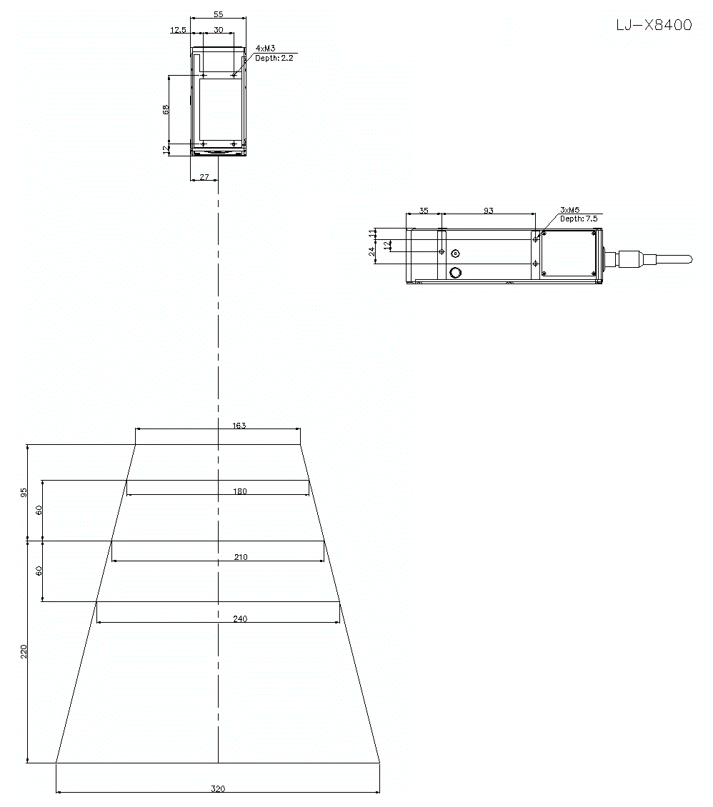
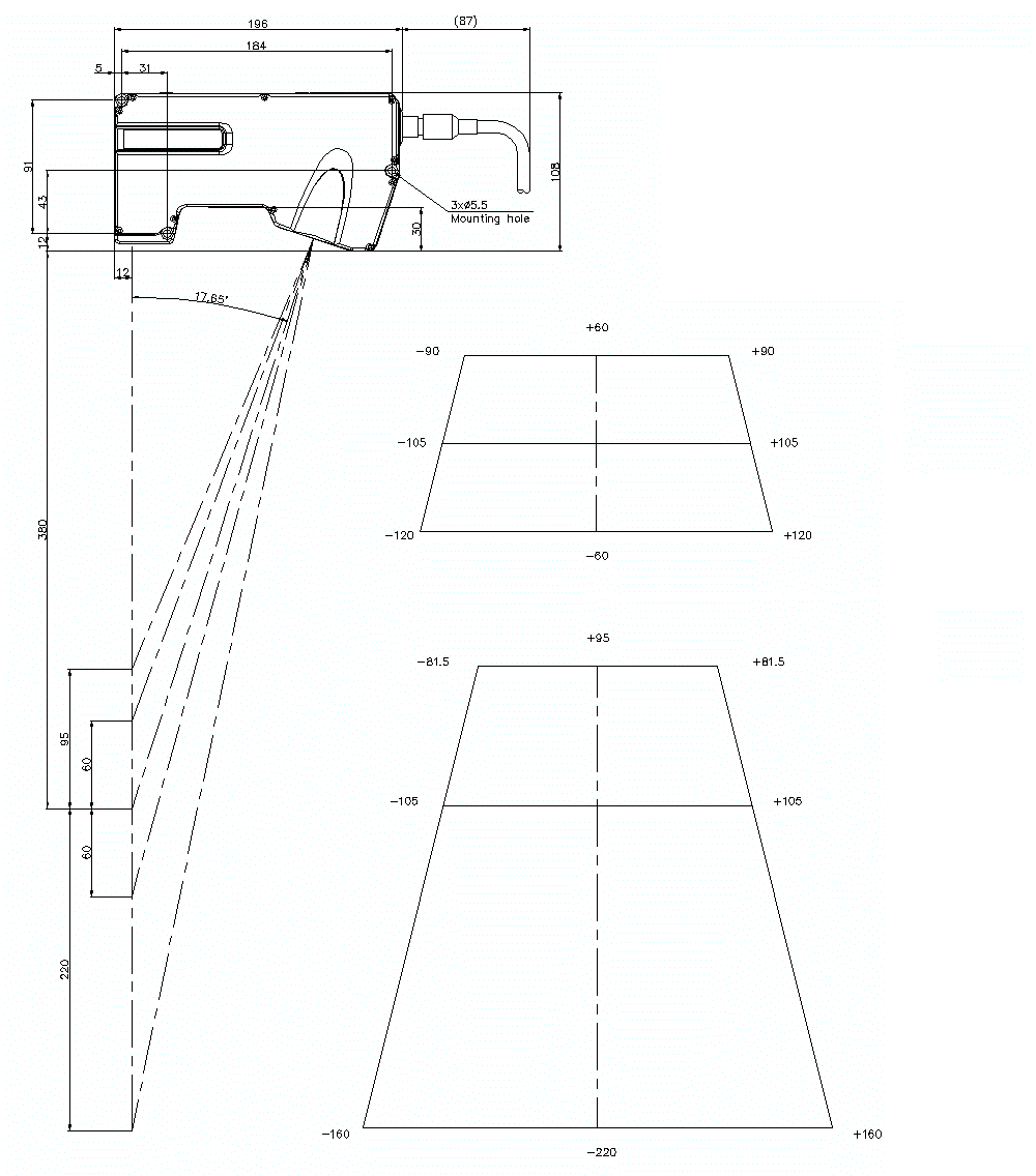
Afmetingen

* Als de tekst moeilijk te lezen is, raadpleeg dan de CAD of de handleiding.

LJ-X8400 Dimension 01

LJ-X8400 Dimension 02