* Download CAD file or product manual for larger image/text and more detail.

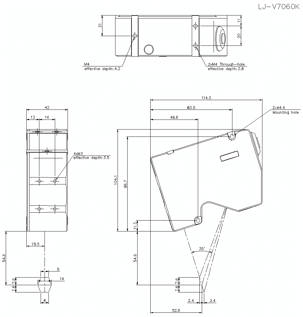
LJ-V7060K Dimension