* Download CAD file or product manual for larger image/text and more detail.

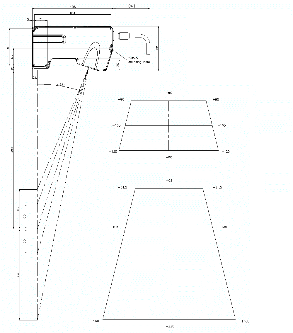
LJ-X8400 Dimension 01

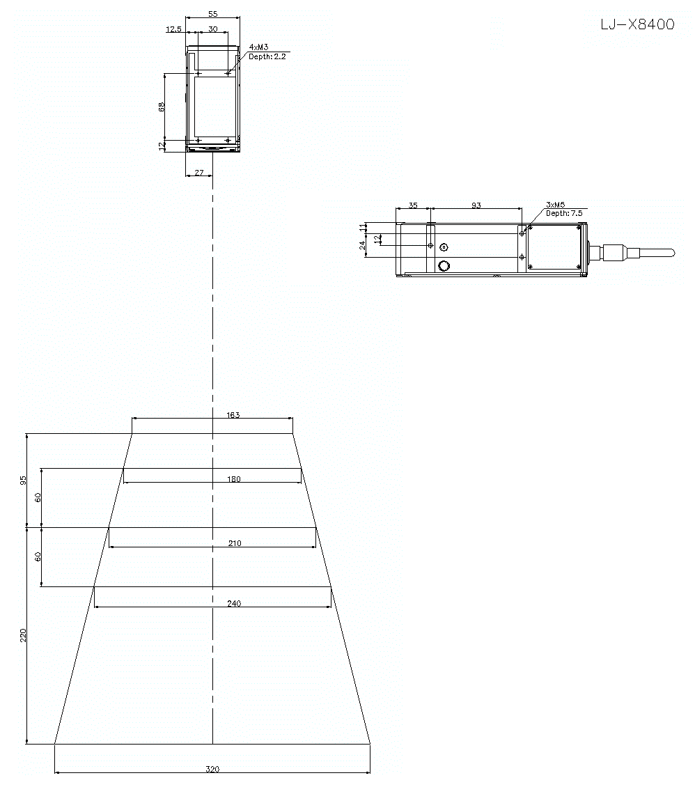
LJ-X8400 Dimension 02